Aria Reserve South
Aria Reserve South Tower living room corner unit
Aria Reserve South terrace water views
Aria Reserve South kitchen water views
Aria Reserve South primary bedroom water views
Aria Reserve South primary bathroom
Aria Reserve Miami private wine cellar room
Aria Reserve South living room water views
Aria Reserve Miami bayfront pool
Aria Reserve Miami lounge pool
Aria Reserve Miami baywalk with watersports
Aria Reserve Miami sitemap
Aria Reserve Miami meditation garden
Aria Reserve baywalk access
Aria Reserve Miami restaurant with water views
Aria Reserve Miami cafe terrace
Aria Reserve garden level amenities sitemap
Aria Reserve Miami lap pool
Aria Reserve Miami lap pool and whirlpool
Aria Reserve Miami lap pool and kid's splash pad
Aria Reserve Miami steam room
Aria Reserve Miami sauna
Aria Reserve Miami spa relaxation area
Aria Reserve Miami sauna
Aria Reserve yoga lounge
Aria Reserve fitness center
Aria Reserve tennis, paddle, and basketball courts
Aria Reserve Miami outdoor children's playground
Aria Reserve Miami teens lounge and gaming center
Aria Reserve Miami kids playroom
Aria Reserve Miami party room with patio
Aria Reserve South sky lounge
Aria Reserve South adult lounge area
Aria Reserve South sky lobby
Aria Reserve sky lobby
Aria Reserve South lounge
Aria Reserve South lounge area
Aria Reserve twin towers 62 stories
Aria Reserve Miami at sunrise

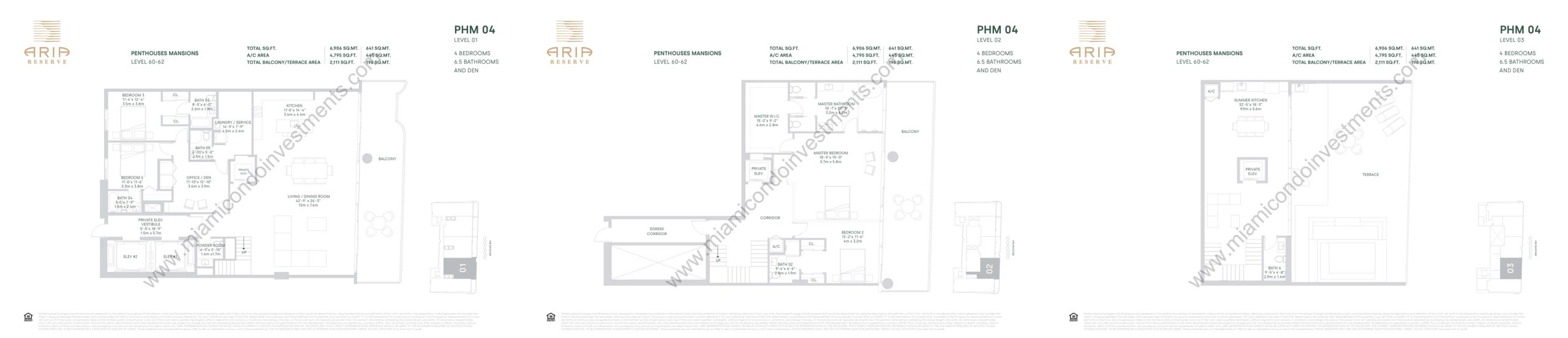
Aria Reserve South Floor Plans

Line

Beds

Baths

Den

Sqft(int)

Sqft(ext)

Sqft total

M² (int)

M² (ext)

M² Total

01 4 5.5 1 2663 291 2954 247 27 274
02 2 3 1 1528 264 1792 142 25 166
03 3 3.5 1 1651 239 1890 153 22 176
04 1 2 1 1028 200 1228 96 19 115
05 3 3.5 1 1760 206 1966 164 19 183
06 2 3 1 1523 244 1767 142 27 164
07 4 5.5 1 2584 300 2884 240 28 268

Line

Beds

Baths

Den

Sqft(int)

Sqft(ext)

Sqft total

M² (int)

M² (ext)

M² Total

01 4 5.5 1 2663 291 2954 247 27 274
02 4 5.5 1 3189 481 3670 296 45 341
05 3 3.5 1 1760 206 1966 164 19 183
06 2 3 1 1523 244 1767 142 27 164

Line

Beds

Baths

Den

Sqft(int)

Sqft(ext)

Sqft total

M² (int)

M² (ext)

M² Total

PH01 4 5.5 1 3260 552 3812 303 51 354
PH02 4 5.5 1 3000 493 3493 279 46 325
PH03 4 5.5 1 2930 494 3424 272 46 318
PH04 4 5.5 1 3289 535 3824 306 50 356

Line

Beds

Baths

Den

Sqft(int)

Sqft(ext)

Sqft total

M² (int)

M² (ext)

M² Total

PHM01 6 7.5 1 6358 1951 8309 590 181 771
PHM02 4 6.5 1 4676 1916 6592 434 178 612
PHM03 5 6.5 1 5010 1907 6917 465 177 642
PHM04 4 6.5 1 4795 2111 6906 445 196 641
PHM05 6 7.5 1 6046 1804 7850 562 167 729