Hablamos Español
"*" indicates required fields
available
available
available
available
available
available
available
available
available
available
available
available
available
available
available
available
available
available
available
available
available
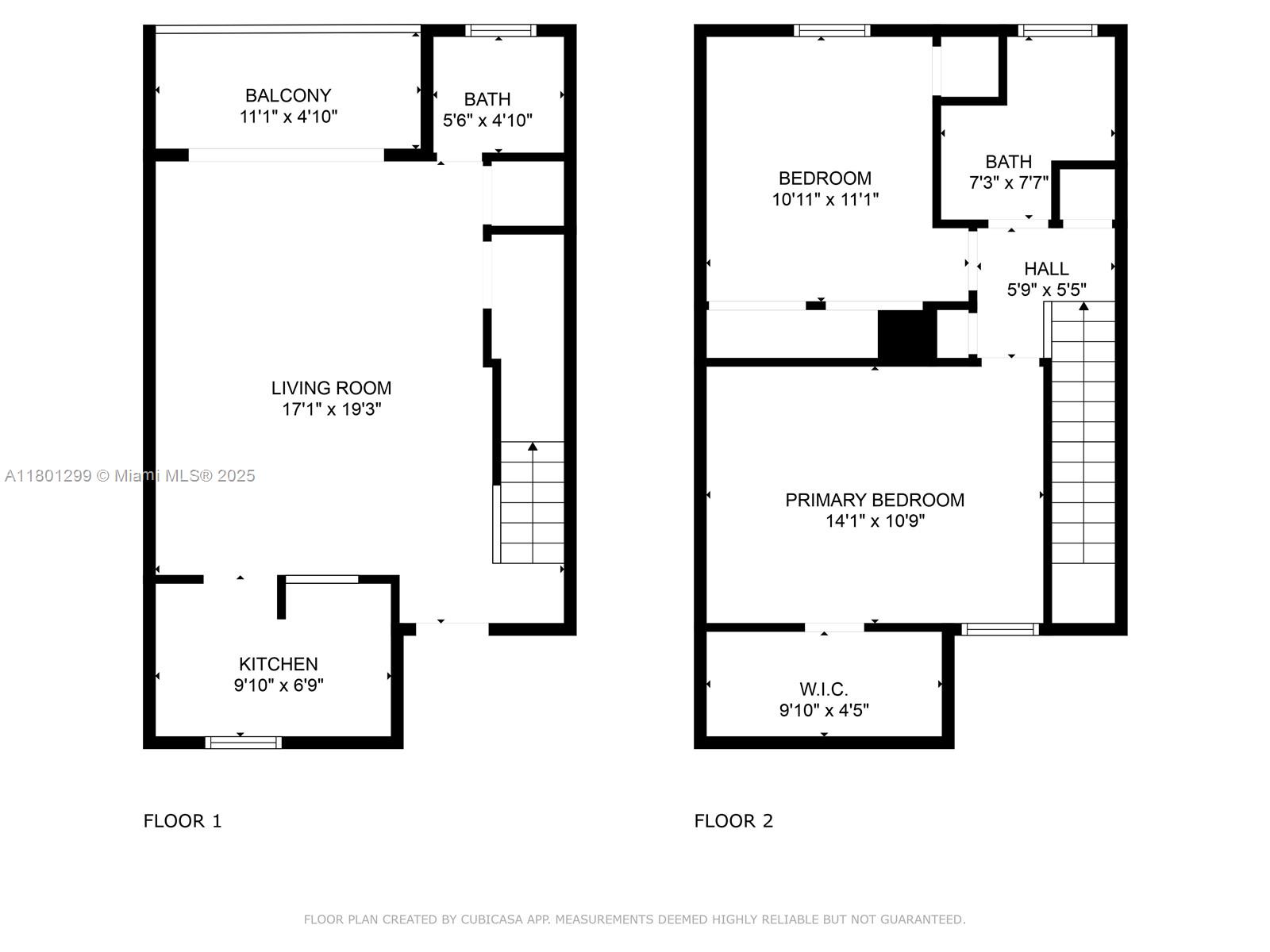
Spacious 2-story unit at 11 Edgewater Dr Apt 8 featuring classic terracotta tile floors, large windows, and excellent natural light. The main level includes an open living/dining area with access to a private balcony overlooking lush landscaping. The kitchen is equipped with granite countertops, white cabinetry, and stainless steel appliances. Upstairs you'll find two well-sized bedrooms, a walk-in closet, and a full bath with a granite vanity. A half bath is located downstairs for added convenience. The unit also offers built-in storage, a private stairwell entry, and a smart layout ideal for roommates, couples, or small families. Centrally located near Coral Gables, Coconut Grove, and major thoroughfares.
© The data relating to real estate for sale/lease on this web site come in part from a cooperative data exchange program of the multiple listing service (MLS) in which this real estate firm (Broker) participates. The properties displayed may not be all of the properties in the MLS's database, or all of the properties listed with Brokers participating in the cooperative data exchange program. Properties listed by Brokers other than this Broker are marked with either the listing Broker's logo or name or the MLS name or a logo provided by the MLS. Detailed information about such properties includes the name of the listing Brokers. Information provided is thought to be reliable but is not guaranteed to be accurate; you are advised to verify facts that are important to you. No warranties, expressed or implied, are provided for the data herein, or for their use or interpretation by the user. The Florida Association of Realtors and its cooperating MLSs do not create, control or review the property data displayed herein and take no responsibility for the content of such records. Federal law prohibits discrimination on the basis of race, color, religion, sex, handicap, familial status or national origin in the sale, rental or financing of housing. Listing courtesy of : Interinvestments Realty, Inc., 305-220-1101
We would love to hear from you! Please fill out this form and we will get in touch with you shortly.
[idx_modalalert]